TVK
Føroyskt
MENU
  • Living
  • Leisure
  • Business
  • Municipality

    Býráðsskrivstovan Tvørávegur 37
    800 Tvøroyri
    Tlf. 611085
    Faks 371814
    tvoroyri@tvoroyri.fo

    Opið: Mán.- frí.: kl. 09.00-15.00

  • News
  • Leisure
  • Sports
  • Sports hall

Sports

  • The Sports Centre at Stórá
  • Sports hall
  • Rowing Club
  • Swimming pool

NewsNews

  • Tvøroyrar Kommuna launches new English-language website 29. January 2026

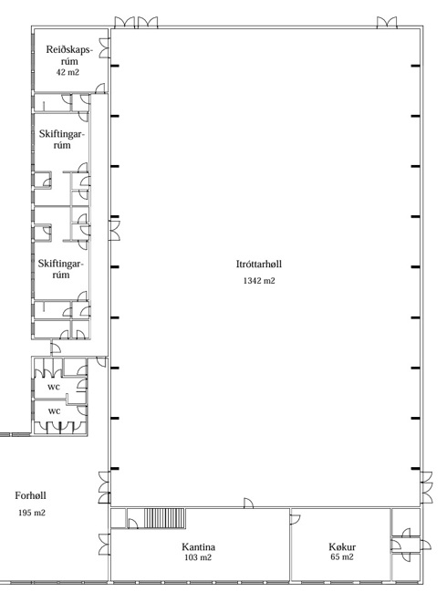
Floor plan of the Sports Hall

Plantekning av ítróttarhøllini

Download PDF

logo

Tvøroyrar Municipal

Tvørávegur 37
Postboks 80
800 Tvøroyri

Tlf. (+298) 611085

tvoroyri@tvoroyri.fo

bokhald@tvoroyri.fo 

V-tal: 339784
EAN: 5790002266737

Opening hours

Monday - Friday 
kl. 09-15

 

Datatrygd

Persónupplýsingarpolitikkur

Vevkamera

Vevkamera

Map