Tvøroyrar Kommuna og Føroya Banki hava í eina tíð samrátt um ognarviðurskiftini av avgreiðslubygninginum á matr.nr. 374, á Sjógøtu 2 og 4. Higartil hava partarnir átt bygningin í felag, men nú er semja gjørd um, at Tvøroyrar Kommuna keypir partin hjá Føroya Banka.
Føroya Banki, sum eigur helvt av bygninginum á Sjógøtu 2-4, vendi seg til Tvøroyrar kommuna í 2024 við fyrispurningi um, hvørt kommunan hevur áhuga í at yvirtaka allan bygningin. Hetta orsakað av, at Føroya Banki ikki longer tørvaði eins nógvar fermetrar til teirra virksemið, sum tá bygningurin bleiv bygdur. Føroya Banki var í hesari tilgongdini í samstarvi við Brim arkitektar um hvussu bygningurin kundi tillagast til tørvin hjá bankanum.
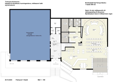
Umsitingin hevur eftir hetta eisini vent seg til Brim Arkitektar, fyri at fáa eina heildarmeting av øllum bygninginum, við ynski um uppskot hvussu bygningurin kann innrættast til at kunna hýsa kunningarstovu, móttøku, fólkabókasavn, býráðssal og allari umsitingini hjá Tvøroyrar kommunu. Í hesum sambandi er Brim arkitektar eisini bidnir um at hugsa um hvussu kringøkið kann dagførast og sampakka við bygningin og miðbýin.
Nú skeyti er undirskriva í dag 24. apríl 2025, gerst Tvøroyrar Kommuna eigari av allari ognini á Sjógøtu 2-4. Eisini er langtíðarsáttmáli undirskrivaður millum Tvøroyrar kommuna og Føroya Banki um, at bankin leigar verandi avgreiðsluhølir á veghæddini, umframt partar av 1. hæddini, samsvarandi leigusáttmála og tørvin hjá bankanum.
Keypsprísurin er kr. 4,9mió. Báðir partar rinda helvt av dagføringum og umvælingum, og árliga leigan fyri verandi avgreiðsluhølir á veghæddini, umframt partar av 1. hæddini er ásett til kr. 390.500,-.
Tvøroyrar kommuna kemur í næstum at dagføra bygningin, til tørvin hjá Føroya Banka og eftirmeta tørvin hjá kommununi í samráð við BRIM Arkitektar. -Síðani kemur Tvøroyrar býráð at taka støðu til innrætting og hvussu kringøkið skal skipast.

Mynd: Umboð fyri Tvøroyrar Kommunu og Føroya Banka eftir undirskrivað skeyti.
U.fv. Eydis Kjærbo, deildarleiðari - Silja á Borg Færø, privatkundastjóri - Turið F. Arge, forstjóri - Kristin Michelsen, borgarstjóri - Páll H. Lave, arkitekt, - Fróði Mortensen kommunustjóri.
BRIM Arkitektar

